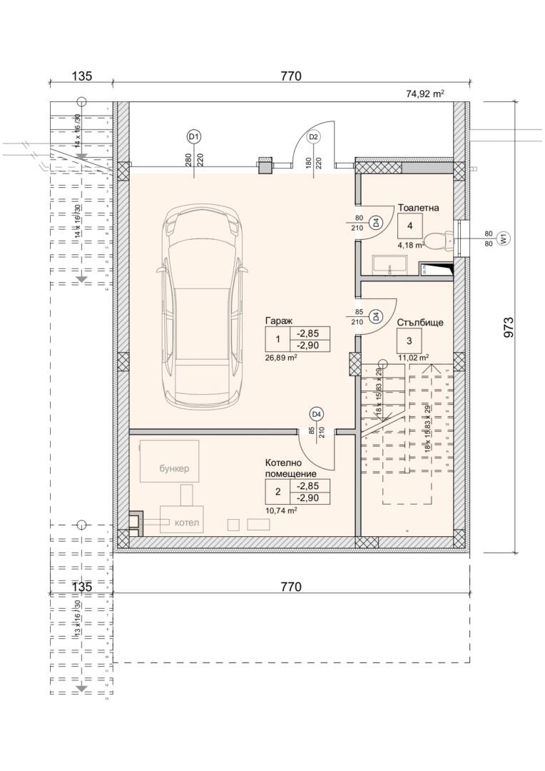
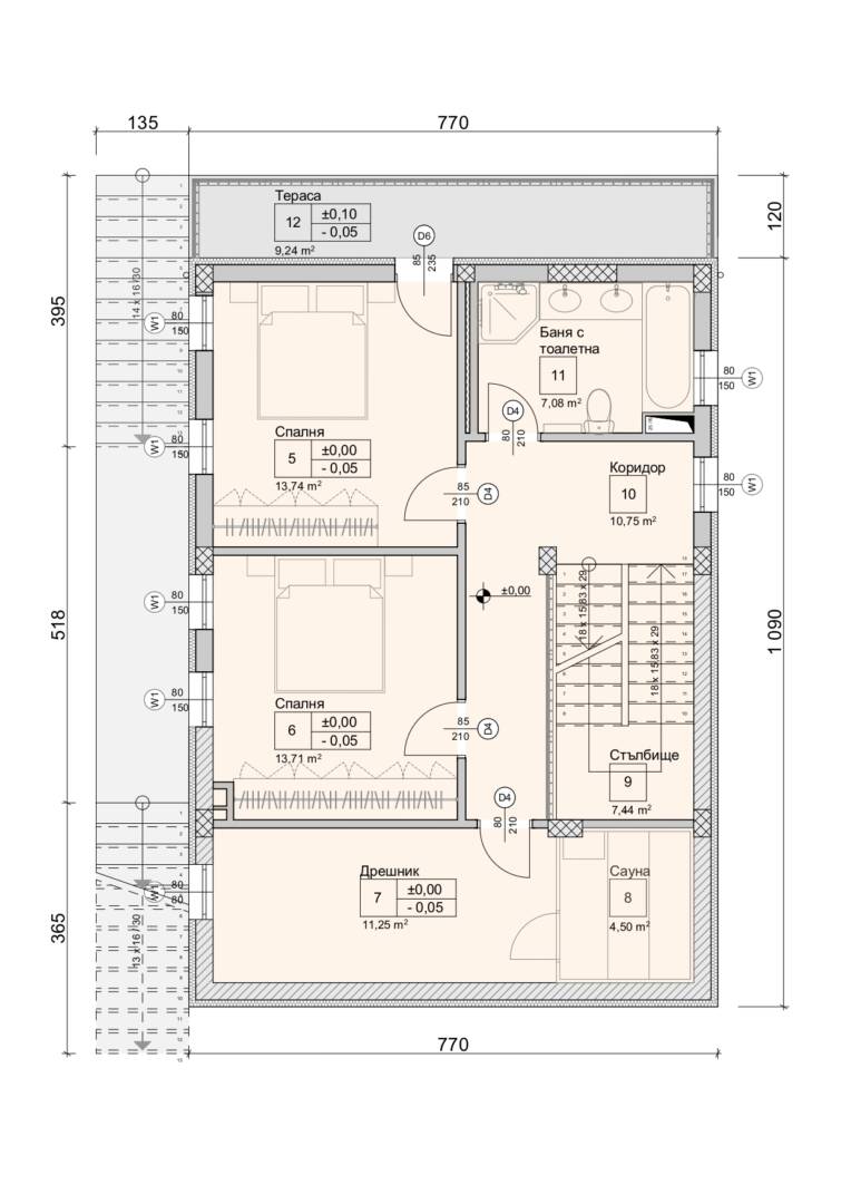
Описание
- Застроена площ – 74,92 м²
- Разгъната застроена площ – 247,88 м²
- Височина на сградата – 9,04 м
- Светла височина в помещенията – 2,60 м
- Конструкция – стоманобенна
- Покрив – плосък
- Фасада – тухлена зидария 25см, топлоизолация EPS 10см., силикатна мазилка
- Отопление – котел на пелети
- Дограма – ПВЦ дограма с троен стъклопакет
Готов проект на еднофамилна къща









